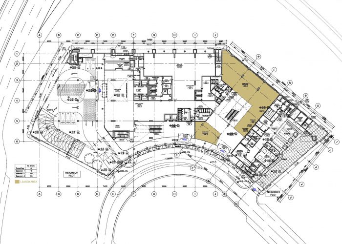
Project Information
- Location: Plot H1, al-jaddaf, Dubai, U.A.E
- Architect: APG
- Owner: aabar properties
- Area : 44,500 m2
- BIM: 3D modeling for elevation development design modifications studies
Role in Project
As part of the APG design development team, I was responsible of preparing the construction documents and details. Meanwhile the client required some design modifications. Thus beside preparing the drawings, a 3D modeling is required to develop the elevations and to implement new designs with total coordination.
- Design development and details
- Design Modification
- Preparing the required submission
- attend design workshops and client’s meeting












